• 165 000 € vente
  • 165 000 € vente
  • 165 000 € vente
  • 165 000 € vente
  • 165 000 € vente
  • 165 000 € vente
  • 165 000 € vente
  • 165 000 € vente
  • 165 000 € vente
  • 165 000 € vente
  • 165 000 € vente
  • Type: Appartement
  • Surface: 74m2
  • 2 Chambres
  • 1 Salle d'eau
  • Nice

Appartement 4 pièces de 74 à Nice

165 000 € - Ref. TAPP100382

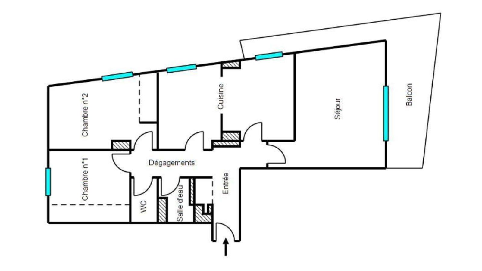
NICE EST ROQUEBILIERE - Situé à deux pas de l'Hôpital Pasteur, lumineux appartement 3/4 pièces traversant de 74.19m², situé au 3eme étage avec ascenseur.

Actuellement configuré en grand 3 pièces, il sera très facile de recréer la 3ème chambre, comme à l'origine.
L'appartement se compose d'une entrée, d'un séjour, d'une grande cuisine indépendante équipée, de deux chambres, d'une salle d'eau, un WC séparé, ainsi que de nombreux rangements. Il bénéficie d'une double exposition SUD-EST / SUD-OUEST, apportant une belle luminosité tout au long de la journée.

Une cave et parking extérieur viennent compléter ce bien.

Coté confort, l'appartement est équipé de double vitrage dans toutes les pièces et de volets roulants électriques. Le chauffage ainsi que l'eau chaude et froide sont inclus dans le montant des charges. A noté : forte consommation de chauffage, impactant le niveau des charges collectives.

Charges par mois : 237 euros.
Taxe foncière : 1519 euros. Le bien est soumis au statut de la copropriété , la quote-part budget prévisionnel (dépenses courantes) est de 2 845,00 euros/an.
Honoraires à la charge du vendeur.
Vous pouvez consulter les barèmes d'honoraires à l'adresse suivante : https://www.agenceduportdenice.fr/nos-honoraires-vente .

Informations détaillées

  • Numéro Etage : 3
  • Nombre d'étage(s) : 8
  • Surface Habitable : 74
  • Nombre de pièce(s) : 4
  • Nombre de chambre(s) : 2
  • Catégorie : Appartement
  • Etat Général : Travaux à prévoir
  • Salle d'eau : 1
  • Nombre de terrasse(s) : 1
  • Installation Eau Chaude : Collective
  • Accès handicapé : Non
  • Ascenseur : Oui
  • Standing : Normal
  • Nombre de cave(s) : 1
  • Exposition : Sud-ouest
  • Chauffage : Collectif
  • Mécanisme de chauffage : Radiateur
Politique liée au démarchage téléphonique : Nous vous informons de votre droit d'inscription à la liste d'opposition pour le démarchage téléphonique et vous suggérons de vous inscrire sur Bloctel. Bloctel est la liste d'opposition au démarchage téléphonique sur laquelle tout consommateur peut s'inscrire gratuitement afin de ne plus être démarché téléphoniquement par un professionnel avec lequel il n'a pas de relation contractuelle en cours, conformément à la loi n°2014-344 du 17 mars 2014 relative à la consommation. La loi précise qu'il est interdit à tout professionnel, directement ou par l'intermédiaire d'un tiers agissant pour son compte, de démarcher téléphoniquement un consommateur inscrit sur cette liste, à l'exception des cas énumérés par la loi.

** Les informations recueillies sur ce formulaire peuvent être enregistrées dans un fichier informatisé par ENTRE VILLE ET VIGNE pour gérer votre demande de contact. Les données sont conservées pendant la durée de gestion de la demande de contact. Vous pouvez accéder aux données vous concernant, les rectifier, demander leur effacement ou exercer votre droit à la limitation du traitement de vos données en contactant "ENTRE VILLE ET VIGNE" par courrier à l'adresse suivante : 31 Place de Levigny 73850 CHARNAY LES MACON. Consultez le site cnil.fr pour plus d'informations sur vos droits.